Saniteettitilat & saniteettikontit
Tarjoamme saniteettitiloja sekä valmiina kokonaisuuksina että räätälöityinä ratkaisuina. Mallistomme kattaa muun muassa käsienpesupisteet, suihku- ja WC-kontit, septitankit ja saunat. Kaikki konttimme (merikontteja lukuun ottamatta) on sähköistetty, ja saniteettikontteihin voidaan aina kytkeä juokseva vesi. Jos kohteessa ei ole viemäröintiä, tarjoamme vuokralle repijäpumppua ja säiliötä.
Saniteettikonttiemme kuljettaminen sujuu helposti ja kustannustehokkaasti kaikkialle. Lisäksi voimme valmistaa moduuleja monissa eri mitoissa. Moduuleja yhdistelemällä taas voidaan toteuttaa suurempiakin saniteettitilakokonaisuuksia. Toimitamme siirtotilat täydellä asennuspalvelulla, ja tarjoamme niihin tarvittaessa kalusteet.
Meiltä voit ostaa saniteettitilat omaksesi tai hyödyntää joustavia leasing- ja vuokravaihtoehtojamme. Pidämme saniteettikonttisi kunnossa myös tulevaisuutta ajatellen, sillä tarjoamme kaikille tiloillemme täyttä huoltopalvelua. Tutustu mallistoomme ja kysy lisää mittatilausmahdollisuuksista – etsitään yhdessä toimintaasi parhaiten tukeva ratkaisu!
Vuokraa kontti tai tilamoduuli
Vastaamme tilatarpeisiisi joustavasti ja ketterästi. Kaikki varastostamme löytyvät kontit ja tilamoduulit ovat vuokrattavissa niin lyhyeksi kuin pidemmäksi aikaa!
Puhtaita tilaratkaisuja
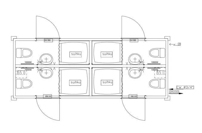
Käsienpesupisteet
WC-kontit
Suihkukontit
Saunakontit
Septitankit
Innovatiiviset eristepinnoitteet konteille ja tilamoduuleille
Nano Shield Ceramic ja Multi Protection -eristepinnoiteet pidentävät tilojesi käyttöikää, parantavat energiatehokkuutta ja suojaavat omaisuuttasi. Sopiva ratkaisu löytyy niin palosuojaukseen ja lämmöneristykseen kuin kondensoitumisen ehkäisyyn. Tutustu vaihtoehtoihin tarkemmin ja kysy lisää – etsitään yhdessä tilaasi parhaitensopiva eristeratkaisu!



















